首页
关于我们
产品中心
电子样本
新闻资讯
荣誉证书
服务支持
联系我们
首页
关于我们
产品中心
电子样本
新闻资讯
荣誉证书
服务支持
联系我们
高压开关设备系列
CF6-12箱式全密封充气柜
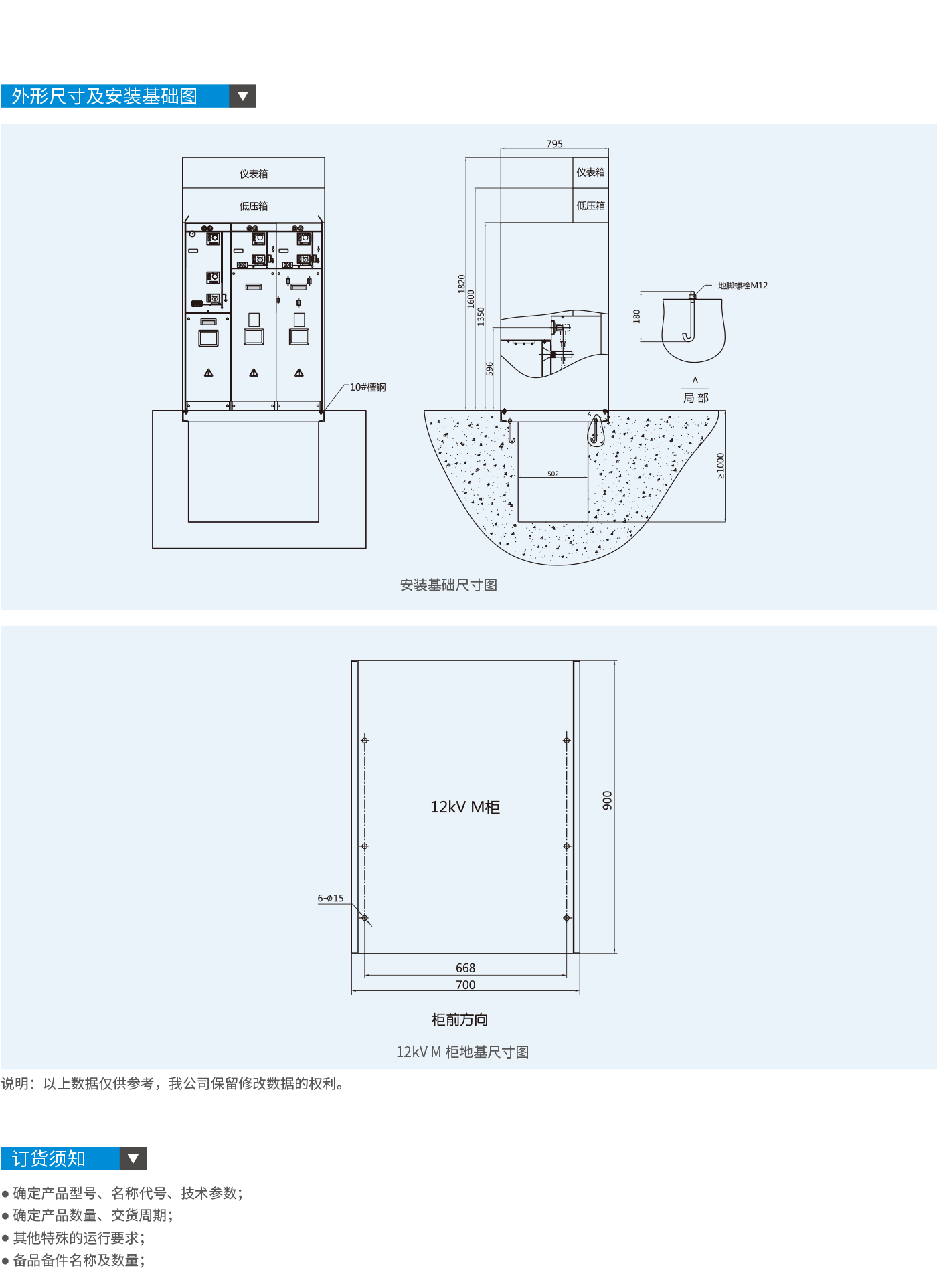
CF6-12气体绝缘金属封闭开关设备系三相交流50Hz,SF6气体全绝缘全密封的金属封闭开关设备。 采用模块化设计,以真空断路器、负荷开关、负荷开关-熔断器组合电器、隔离开关等主开关作为功能单元,置于密封气箱内构成各充气隔室单元,其母线通过母线联结器可以在左右方向任意扩展,进出线采用插接式电缆。不受环境影响,安全性高,免维护,可靠性强。 广泛应用于工业及民用环网配电系统及供电末端,特别适用于小型二次配电站、工矿企业开闭所、城市住宅小区、机场、铁路等场所。
主要内容
联系他们
地址:浙江省乐清市柳市镇环城东路3号
服务热线:13296703698
电话:0577-62685260
传真:0577-62685170
E-mail:1211089768@qq.com
关于我们
公司介绍
荣誉资质
新闻资讯
公司新闻
服务支持
在线留言
电子样本
扫码浏览电子样本
COPYRIGHT © 2018 成飞电气科技有限公司 ALL RIGHTS RESERVED
浙ICP备18023058号